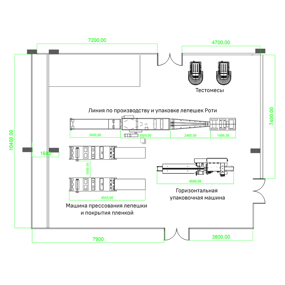
Линия по производству и упаковки лепешек роти Foodatlas
— это комплекс, объединяющий оборудование для замеса теста, формования заготовок, прессования, покрытия защитной пленкой и горизонтальной упаковки готовых изделий. Линия предназначена для автоматизированного выпуска лепешек типа «роти», тортильи, чапати и других видов пресных мучных полуфабрикатов на предприятиях общественного питания, в пекарнях и цехах по производству замороженных заготовок. Базовая конфигурация включает тестомесильные машины, линию формования заготовок KG-1501-1, пресс для лепешек с устройством покрытия пленкой KG-1502 и горизонтальный упаковщик TFD-480DS. Все узлы выполнены из материалов, разрешённых для контакта с пищевыми продуктами, и соответствуют отраслевым стандартам качества.
Преимущества:
- Высокая производительность и непрерывность процесса. Линия способна выдавать до 7200 заготовок в час на этапе формования, а упаковочный модуль обеспечивает герметичную упаковку до 4555 изделий в час. Сквозная автоматизация исключает ручной труд на операциях дозирования, раскатки, прессования и фасовки.
- Интегрированный тестомесильный узел с мощным месильным органом и тестораскаточный блок KG-1501-1 формируют стабильную по толщине тестовую ленту. Многоступенчатая система растяжения предотвращает разрывы, а автоматические дозаторы масла и начинки гарантируют точное дозирование компонентов.
- Машина прессования KG-1502 последовательно выполняет калибровку заготовки и нанесение защитной пленки. Регулировочные винты позволяют менять толщину лепешки от тонкого лаваша до пышных изделий, а механизм подачи пленки предотвращает слипание полуфабрикатов при хранении.
- Горизонтальный упаковщик TFD-480DS с расширенным диапазоном настройки пакета (ширина до 220 мм, длина до 350 мм) обеспечивает плотное облегание продукта и надёжную термосварку шва. Электронная панель управления синхронизирует все узлы, снижая риск брака.
- Модульная компоновка и использование нержавеющей стали для всех контактирующих с продуктом деталей упрощают санитарную обработку и интеграцию в существующие производственные линии. Оборудование спроектировано для длительной эксплуатации в режиме интенсивных нагрузок.
- Производство начинается с подачи сырья (мука, вода, масло, начинка) в загрузочные бункеры тестомесильных машин, входящих в состав линии. Равномерный замес теста с заданной влажностью и структурой - это основа для стабильной работы всех последующих узлов.
- Далее готовое тесто поступает в линию формования заготовок KG-1501-1. Здесь тесто последовательно проходит через тестораскаточный узел и многоступенчатую систему растяжения, формируя непрерывную тестовую ленту равномерной толщины. На движущуюся ленту автоматические дозаторы наносят масло и, при необходимости, начинку. Затем лента закатывается в плотный рулет, после чего ротационный делитель нарезает рулет на порционные заготовки. Производительность на этом этапе достигает 7200 заготовок в час. Все заготовки имеют идентичный вес и четкую геометрию без разрывов.
- Следующий этап - машина прессования и покрытия пленкой KG-1502. Заготовки из теста подаются в прессующий узел, где с помощью регулировочных винтов устанавливается нужная толщина лепешки (от тонкого лаваша до пышной лепешки). Сразу после прессования встроенный механизм наносит защитную пленку (например, полиэтиленовую) на всю поверхность изделия. Это предотвращает слипание полуфабрикатов при хранении и транспортировке, облегчая их последующую разделку. Операция совмещена в одном аппарате, что экономит пространство и время цикла.
- Финальный этап - горизонтальная упаковочная машина TFD-480DS. Отпрессованные и покрытые пленкой лепешки поступают в зону упаковки. Машина автоматически формирует пакет из термосвариваемых материалов (PE, PET, PP) с заданными размерами (ширина пакета от 30 до 220 мм, длина от 80 до 350 мм), плотно облегает продукт и выполняет герметичную термосварку шва. Полуавтоматическая подача пакета упрощает контроль оператора, а электронная панель управления синхронизирует все узлы. Производительность упаковщика на линии соответствует общему темпу выпуска (до 4555 изделий в час). На выходе получаются готовые упакованные лепешки роти, готовые к реализации или хранению.
Как оформить заказ
- Через Интернет-магазин:
- Через быстрый заказ «Купить в 1 клик»
- Через кнопку нашли дешевле
- Через кнопку Купить в кредит
Способы оплаты
- Онлайн-оплата на сайте
- Офлайн в магазине
- Заказать в отделе продаж
- Кредит
Доставка по Челябинску, Москве, Краснодару, Самаре и Казани доставляем заказы через службу курьерской доставки Яндекс.Доставка. Доставка от двери до двери за 90 минут или в удобное время! Есть наложенный платеж.
Сделав заказ на нашем сайте, Вы сможете получить оборудование более чем в 70-ти городах России. Доставка производится посредством транспортно-экспедиционных компаний "ПЭК," "СДЭК" ,"Деловые Линии" и других.
Внимание! Заказ с оплатой наложенным платежом отправляется после получения предоплаты в размере 10% от суммы заказа (но не меньше 500 рублей). Минимальная сумма при заказе с оплатой наложенным платежом — 3000 рублей.
Оплата товаров в магазине возможна следующими способами:
- Для индивидуальных предпринимателей:
- безналичный расчет
- покупка в кредит (сумма заказа от 3000 до 500000 рублей)
- Для физических лиц возможны несколько видов оплаты:
- в кредит через Т-банк
- онлайн оплата через сервис приема платежей ЮKassa
- банковский перевод
- наложенный платеж: при оформлении заказа с доставкой ПЭК, СДЭК и почтой России
- наличный расчет и оплата банковскими картами в фирменном магазине Foodatlas в Челябинске

